How Our Kitchen Blueprint & 3D Design Process Works
Every great remodel starts with a great plan. Our step-by-step process combines a personal consultation, professional 3D design, and showroom selections so you can see and approve your new kitchen before we ever start building.
Initial In-Home Consultation
Your project begins with an in-home consultation. A remodeling specialist walks through your existing kitchen with you, listens to what you want to change, and talks through how you want the space to function day to day. From there, you’ll get professional layout ideas based on flow, storage, and what will work best for your home.
Concept Layout & Rough Sketch
After the visit, we return to the office and create a rough sketch of your new kitchen layout. This first concept shows how cabinets, appliances, and the island could be re-arranged to improve flow and function. If you like the direction and want to move forward, we send this sketch to our professional kitchen designer for full 3D development.
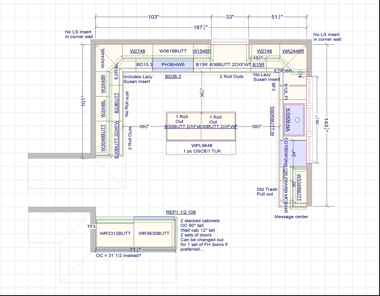
Full 3D Rendering & Design Options
Our dedicated kitchen designer transforms the rough sketch into a detailed 3D rendering with multiple layout options. You’ll see your future kitchen from every angle, including cabinet placement, island size, appliance locations, and traffic patterns, so you can visualize how the space will truly feel. The designer’s showroom features real-life displays with different colors, door styles, finishes, and accessories, including appliance garages, spice pull-outs, organizers, and trash pull-outs.
Protected Design & Blueprint Release
To protect the value of our design work, final blueprints and detailed design files are released once a project deposit is placed. This ensures your custom design isn’t shopped around to other contractors and that the time invested into planning your kitchen directly benefits your project.
Showroom Selections & Finalization
When you’re happy with the 3D design and ready to move ahead, we schedule a showroom appointment with our kitchen designer. Together you’ll refine the layout and make final selections for cabinets, colors, countertops, hardware, and storage features. After this meeting, we finalize the design, confirm the details with you, and prepare to move into the construction phase with a clear, build-ready plan.
Ready to Get Started?






